Mẫu thiết kế thi công nhà chị Hưng ở Thanh Hóa ghi dấu ấn bởi phong cách hiện đại, tối giản nhưng vẫn đầy đủ tiện nghi. Dưới bàn tay thiết kế của Real House, ngôi nhà được tổ chức không gian hợp lý theo chiều cao, tận dụng tối đa ánh sáng và gió tự nhiên. Đây là phương án phù hợp cho những gia đình mong muốn một tổ ấm vừa đẹp về hình thức, vừa tối ưu về công năng sử dụng.
Thi công nhà phố 2 tầng hiện đại của chị Hưng ở Thanh Hóa
Kiến trúc sư Lê Xuân Đức cùng chủ nhà chụp hình lưu niệm tại công trình nhà phố 2 tầng hiện đại của chị Hưng ở Thanh Hóa, khi phần móng và tường bao đang hoàn thiện, thể hiện tinh thần hợp tác, giám sát chặt chẽ, tiến độ rõ ràng, vật liệu gạch chắc chắn, không gian khu dân cư.
Hành trình thiết kế nhà phố 2 tầng hiện đại
Các kiến trúc sư Real House đã bắt đầu với khảo sát kỹ hiện trạng, phân tích thói quen sinh hoạt và nhu cầu sử dụng của từng thành viên. Thay vì chia nhỏ không gian theo chiều ngang, Real House lựa chọn giải pháp phát triển không gian theo chiều cao, khai thác tối đa từng mét vuông sàn. Mỗi tầng được xác định rõ chức năng, hạn chế tối đa diện tích giao thông nhưng vẫn đảm bảo sự thông thoáng và kết nối.

Những vấn đề như thiếu sáng, bí gió hay cảm giác nặng nề của nhà phố hẹp cũng được xử lý khéo léo. Cửa kính lớn, ban công, giếng trời và mảng xanh được đưa vào đúng vị trí, giúp ánh sáng và không khí lưu thông tự nhiên xuyên suốt ngôi nhà. Nhờ đó, dù diện tích không lớn, không gian bên trong vẫn rộng rãi, dễ chịu.
Giải pháp kiến trúc hiện đại, tận dụng tối đa chiều cao
Trước đặc thù lô đất nhà phố có bề ngang hạn chế, Real House đã lựa chọn giải pháp kiến trúc phát triển theo chiều cao nhằm mở rộng không gian sử dụng cho gia đình chị Hưng. Thay vì dàn trải công năng trên một mặt bằng chật hẹp, ngôi nhà được tổ chức theo nhiều tầng với bố cục rõ ràng, mỗi tầng đảm nhiệm một vai trò riêng nhưng vẫn liên kết chặt chẽ trong tổng thể chung.

Hình khối công trình được thiết kế vuông vắn, mạch lạc, giảm thiểu các chi tiết rườm rà để tạo cảm giác gọn gàng và hiện đại. Mặt tiền sử dụng các mảng tường phẳng kết hợp cửa kính lớn, ban công và lam che nắng, vừa tăng chiều sâu thị giác vừa giúp công trình trông cao ráo, thanh thoát hơn. Khai thác chiều cao còn cho phép bố trí thêm tầng tum, tạo không gian đa năng phục vụ nhu cầu thờ cúng, thư giãn và sinh hoạt ngoài trời.
Công năng sử dụng khoa học, đáp ứng trọn vẹn nhu cầu sinh hoạt
Trong thiết kế nhà chị Hưng tại Thanh Hóa, Real House đã lựa chọn cách tổ chức công năng theo chiều cao, giúp mỗi không gian đều phát huy tối đa giá trị sử dụng dù diện tích mặt bằng hạn chế. Toàn bộ ngôi nhà được phân chia rõ ràng thành các khu vực sinh hoạt chung, không gian riêng tư và khu vực chức năng bổ trợ, tạo nên sự cân bằng giữa tiện nghi và sự thoải mái.
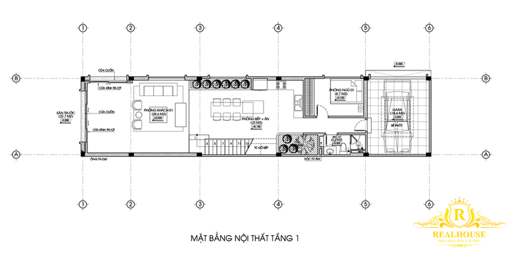
Tầng 1 là không gian sinh hoạt chính. Khu để xe gọn phía trước, thuận tiện di chuyển. Phòng khách sau cửa chính, dùng cửa kính lớn tạo sáng thoáng. Bếp và ăn uống liền mạch, hạn chế vách ngăn, tăng kết nối gia đình. Nhà vệ sinh được sắp xếp khéo léo ở cuối nhà.

Tầng 2 là không gian nghỉ ngơi và sinh hoạt riêng. Phòng ngủ được bố trí hợp lý về diện tích, có cửa sổ và ban công đón ánh sáng tự nhiên, mang lại sự yên tĩnh và thư giãn. Xen kẽ là khu vực sinh hoạt chung, nơi các thành viên có thể quây quần, nghỉ ngơi mà không ảnh hưởng đến không gian riêng tư của từng phòng.
Khu vực tầng tum được khai thác như một không gian đa năng. Phòng thờ được bố trí trang nghiêm, tách biệt với sinh hoạt thường ngày. Sân chơi và sân phơi rộng rãi kết hợp mảng xanh tạo thêm không gian thư giãn, giúp tổng thể ngôi nhà trở nên thoáng đãng và trọn vẹn hơn trong quá trình sử dụng lâu dài.
Real House – Đơn vị thiết kế nhà đẹp và xây nhà trọn gói uy tín
Real House là đơn vị chuyên cung cấp dịch vụ thiết kế nhà đẹp và xây nhà trọn gói, đồng hành cùng khách hàng từ khâu lên ý tưởng đến khi công trình hoàn thiện. Với đội ngũ kiến trúc sư và kỹ sư giàu kinh nghiệm, Real House luôn đặt nhu cầu thực tế của gia chủ làm trung tâm, từ đó đưa ra giải pháp thiết kế phù hợp với diện tích, ngân sách và phong cách sống của từng gia đình.

Bên cạnh thiết kế, Real House còn mang đến dịch vụ xây nhà trọn gói với quy trình làm việc rõ ràng, minh bạch và tối ưu chi phí. Mỗi công trình đều được giám sát chặt chẽ về chất lượng, tiến độ và vật liệu sử dụng, đảm bảo sự đồng bộ giữa bản vẽ và thi công thực tế. Nhờ đó, Real House không chỉ giúp khách hàng sở hữu một ngôi nhà đẹp về hình thức mà còn bền vững, tiện nghi và an tâm trong suốt quá trình sử dụng.
Thiết kế thi công nhà phố 2 tầng của chị Hưng ở Thanh Hóa là ví dụ tiêu biểu cho cách tối ưu không gian hiệu quả trên diện tích nhà phố. Ngôi nhà vừa đảm bảo công năng, vừa mang giá trị thẩm mỹ lâu dài. Nếu bạn đang tìm giải pháp thiết kế phù hợp cho tổ ấm của mình, hãy liên hệ Real House để được tư vấn chi tiết và đồng hành từ ý tưởng đến hoàn thiện.

