Giữa nhịp sống sôi động khu vực Cầu Bươu, Hà Nội, thiết kế biệt thự 3 tầng của anh Tân nổi bật với phong cách tân cổ điển gọn gàng, tinh tế. Dưới bàn tay Real House, công trình đảm bảo tiện nghi sinh hoạt, đồng thời khắc họa cá tính gia chủ. Mỗi chi tiết trong biệt thự phố 3 tầng đều được thiết kế chỉn chu, đảm bảo tính thẩm mỹ cao và đáp ứng tốt công năng sử dụng.
Tổng quan biệt thự phố 3 tầng phong cách tân cổ điển của anh Tân
Khi anh Tân trao đổi với Real House về ngôi nhà 3 tầng mong muốn, điều khiến anh băn khoăn nhất là làm sao để không gian vừa cổ điển, vừa dễ sử dụng trong sinh hoạt hằng ngày. Anh không muốn một ngôi nhà quá cầu kỳ, nhưng cũng lo ngại sự đơn giản sẽ khiến tổng thể trở nên đơn điệu và thiếu điểm nhấn. Bài toán đặt ra là phải dung hòa được thẩm mỹ và công năng trong cùng một thiết kế.

Real House tiếp cận vấn đề từ nhu cầu thực tế của gia đình anh Tân. Thay vì bắt đầu bằng hình khối hay phong cách, các kiến trúc sư tập trung tìm hiểu thói quen sinh hoạt, những bất tiện từng gặp phải và mong muốn sử dụng không gian lâu dài. Từ đó, phương án thiết kế được định hình theo hướng mạch lạc, rõ ràng, tránh những chi tiết rườm rà dễ lỗi thời.

Giải pháp của Real House là tổ chức không gian khoa học, ưu tiên sự tiện nghi và cảm giác thoải mái khi sử dụng. Phong cách tân cổ điển được thể hiện vừa đủ, không phô trương, nhưng vẫn đảm bảo tính thẩm mỹ tổng thể. Ngôi nhà 3 tầng của anh Tân vì thế không chỉ đáp ứng nhu cầu ở hiện tại, mà còn phù hợp với nhịp sống của gia đình trong nhiều năm về sau.

Giải pháp kiến trúc và hình khối mặt tiền cho biệt thự
Khi bắt tay vào xử lý mặt tiền cho ngôi nhà 3 tầng của anh Tân, Real House hiểu rằng đây không chỉ là vấn đề thẩm mỹ, mà còn ảnh hưởng trực tiếp đến cảm nhận không gian bên trong. Anh Tân mong muốn một mặt tiền tân cổ điển, gọn gàng, nhưng vẫn có điểm nhấn để ngôi nhà không bị hòa lẫn giữa nhiều công trình xung quanh. Nếu xử lý quá đơn giản, công trình sẽ nhạt nhòa. Ngược lại, nếu quá nhiều chi tiết, mặt tiền dễ trở nên nặng nề.

Từ bài toán đó, Real House lựa chọn giải pháp hình khối rõ ràng, ưu tiên các mảng đặc – rỗng được sắp xếp có chủ ý. Ban công được đưa ra vừa đủ, đóng vai trò như khoảng đệm giúp che nắng và tạo chiều sâu cho mặt đứng. Hệ cửa kính lớn được sử dụng để mở rộng tầm nhìn, đồng thời mang ánh sáng tự nhiên vào bên trong nhà.

Màu sắc mặt tiền được tiết chế, sử dụng gam trung tính để giữ sự bền vững theo thời gian. Các chi tiết trang trí được giảm thiểu, thay vào đó là sự cân đối về tỷ lệ và đường nét. Nhờ cách xử lý này, mặt tiền ngôi nhà vẫn giữ được nét cổ điển, thanh thoát, đồng thời phản ánh đúng tinh thần sống mà anh Tân và gia đình hướng đến.
Bố trí công năng biệt thự phố 3 tầng khoa học cho sinh hoạt gia đình
Trong thiết kế biệt thự phố 3 tầng của anh Tân, Real House lựa chọn phương án bố trí công năng theo hướng rõ ràng, ưu tiên sự thuận tiện trong sinh hoạt hằng ngày. Mỗi tầng đảm nhiệm một nhóm chức năng riêng, giúp ngôi nhà vận hành mạch lạc và dễ sử dụng cho các thành viên trong gia đình.
Tầng 1 là không gian sinh hoạt chung
Khu vực phòng khách được đặt ngay sau cửa chính, giữ vai trò trung tâm kết nối các không gian. Cách bố trí mở giúp việc di chuyển và quan sát thuận tiện hơn. Liền kề phòng khách là khu vực bếp và phòng ăn, được sắp xếp liên thông để tạo sự gắn kết giữa các thành viên trong gia đình.
Phối cảnh phòng khách và bếp ăn ở tầng 1
Điểm nhấn của tầng này là khu vực tủ rượu, được bố trí khéo léo giữa các không gian, vừa tăng giá trị thẩm mỹ, vừa phục vụ nhu cầu tiếp khách và sinh hoạt. Nhà vệ sinh chung được đặt ở cuối nhà, đảm bảo sự kín đáo và không ảnh hưởng đến các khu vực chính.
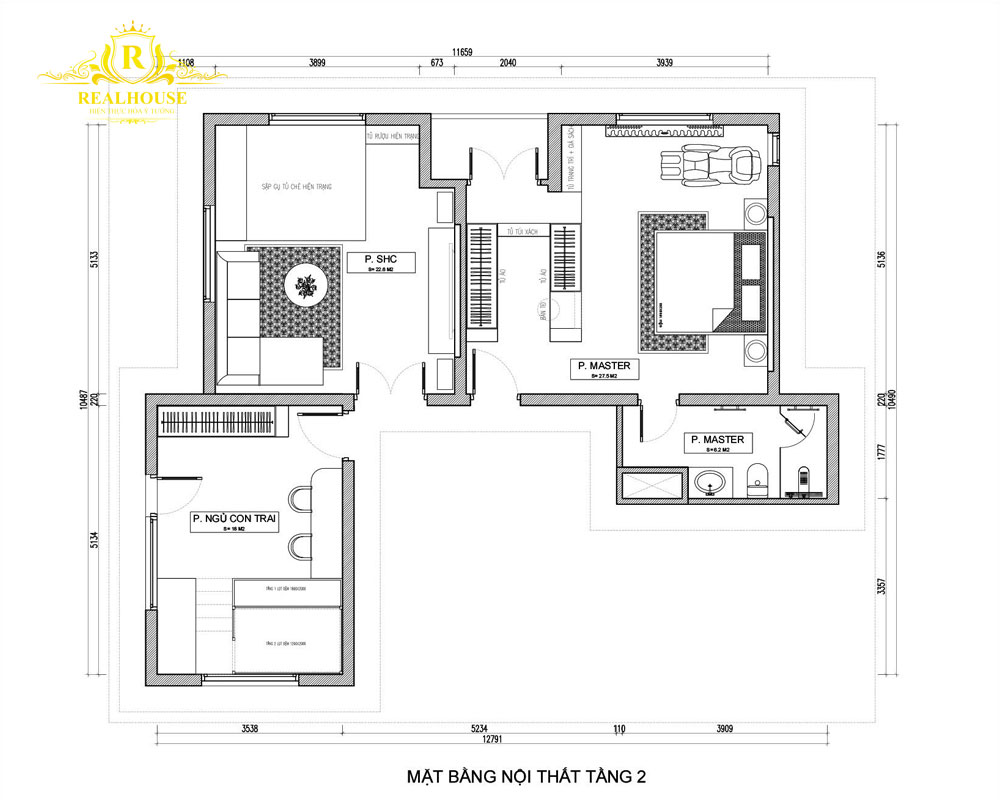
Tầng 2 bố trí cho không gian nghỉ ngơi
Phòng ngủ chính có diện tích rộng, được thiết kế đảm bảo sự yên tĩnh và riêng tư cho gia chủ. Phòng ngủ còn lại phù hợp cho con hoặc khách, đáp ứng đầy đủ nhu cầu sinh hoạt. Một nhà vệ sinh chung được đặt tại vị trí thuận tiện, giúp các phòng tiếp cận dễ dàng. Cách tổ chức công năng này mang lại sự cân bằng giữa sinh hoạt chung và không gian riêng tư cho gia đình anh Tân.
Phối cảnh phòng sinh hoạt chung ở tầng 2
Dấu ấn Real House trong thiết kế và thi công
Trong quá trình triển khai công trình nhà 3 tầng của anh Tân, dấu ấn của Real House thể hiện rõ ngay từ cách tiếp cận vấn đề. Thay vì áp đặt một mẫu thiết kế có sẵn, đội ngũ kiến trúc sư bắt đầu bằng việc lắng nghe nhu cầu thực tế của gia đình, phân tích thói quen sinh hoạt và những mong muốn sử dụng lâu dài. Mỗi phương án đưa ra đều được cân nhắc kỹ giữa thẩm mỹ, công năng và khả năng thi công thực tế, giúp gia chủ dễ hình dung và chủ động trong từng quyết định.
Phối cảnh phòng ngủ Master ở tầng 2
Bên cạnh thiết kế, Real House còn đồng hành xuyên suốt quá trình thi công, đảm bảo công trình bám sát bản vẽ và đúng tiến độ. Vật liệu được lựa chọn và kiểm soát chặt chẽ, các hạng mục thi công được giám sát thường xuyên để hạn chế sai lệch phát sinh. Nhờ quy trình làm việc rõ ràng và sự phối hợp chặt chẽ giữa các bộ phận, ngôi nhà của anh Tân không chỉ đạt yêu cầu về thẩm mỹ mà còn đảm bảo độ bền, sự tiện nghi và tính ổn định trong quá trình sử dụng lâu dài.
Phối cảnh phòng ngủ con trai ở tầng 2
Với cách tiếp cận bài bản và đồng hành xuyên suốt từ thiết kế đến thi công, Real House đã mang đến cho anh Tân một không gian sống trọn vẹn và hợp lý. Công trình không chỉ đáp ứng nhu cầu hiện tại mà còn sẵn sàng cho tương lai. Nếu bạn đang tìm kiếm một giải pháp xây nhà hiệu quả, hãy liên hệ Real House để được tư vấn chi tiết và hỗ trợ chuyên nghiệp.























