Thiết kế nội thất lâu đài cổ Châu Âu 4 tầng – Anh Tuấn Thanh Hóa

Chủ đầu tư Anh Tuấn
Địa chỉ Thanh Hóa
Loại hình
Số tầng
Mặt tiền
Tổng diện tích
Công năng Phòng khách, phòng ngủ, bếp, WC, thư viện, hầm rượu, phòng thờ,...
Đơn vị thiết kế Realhouse
Năm thực hiện 2020

Mẫu lâu đài cổ châu Âu 4 tầng anh Tuấn Thanh Hóa là công trình do Real House trực tiếp thiết kế và triển khai phần nội thất. Không gian bên trong được định hình theo phong cách tân cổ điển sang trọng, chú trọng tính đối xứng và chi tiết chạm khắc thủ công tinh xảo. Từ đại sảnh đến phòng ngủ, mọi khu vực đều thể hiện sự chỉn chu và đẳng cấp, phản ánh rõ gu thẩm mỹ của gia chủ.

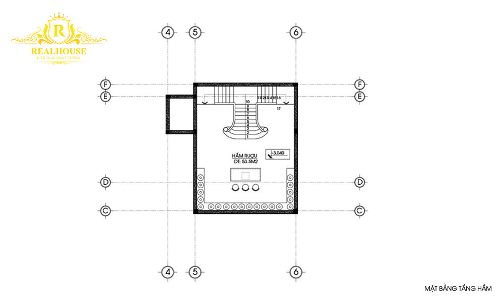
Nội thất tầng hầm – Hầm rượu sang trọng và đậm chất thưởng lãm

Nội thất tầng hầm lâu đài được Real House thiết kế chuyên biệt làm hầm rượu, nơi lưu trữ và bảo quản những dòng rượu yêu thích của gia chủ. Không gian mang tông màu nâu trầm ấm, kết hợp ánh sáng vàng dịu nhằm tạo cảm giác sang trọng và riêng tư. Hệ tủ rượu được bố trí bao quanh tường, thiết kế dạng vòm cổ điển, vừa tăng tính thẩm mỹ vừa tối ưu diện tích lưu trữ.

Tang-ham-ham-ruou-sang-trong-va-dam-chat-thuong-lam-realhouse

Chất liệu gỗ tự nhiên cao cấp được xử lý kỹ lưỡng để đảm bảo độ bền trong môi trường tầng hầm. Ở trung tâm là quầy bar nhỏ ốp đá tự nhiên, kết hợp ghế cao bọc da, tạo nên một khu vực thưởng rượu tinh tế. Trần hầm được trang trí hoa văn nhẹ, không quá cầu kỳ nhưng đủ để đồng bộ với phong cách chung. Không gian này không chỉ đơn thuần là nơi cất giữ rượu mà còn là góc thư giãn, tiếp đãi bạn bè trong bầu không khí ấm cúng và đẳng cấp.

Tang-ham-ham-ruou-sang-trong-va-dam-chat-thuong-lam-1-realhouse

Tang-ham-thiet-ke-noi-that-lau-dai-co-chau-au-4-tang-anh-tuan-thanh-hoa-realhouse

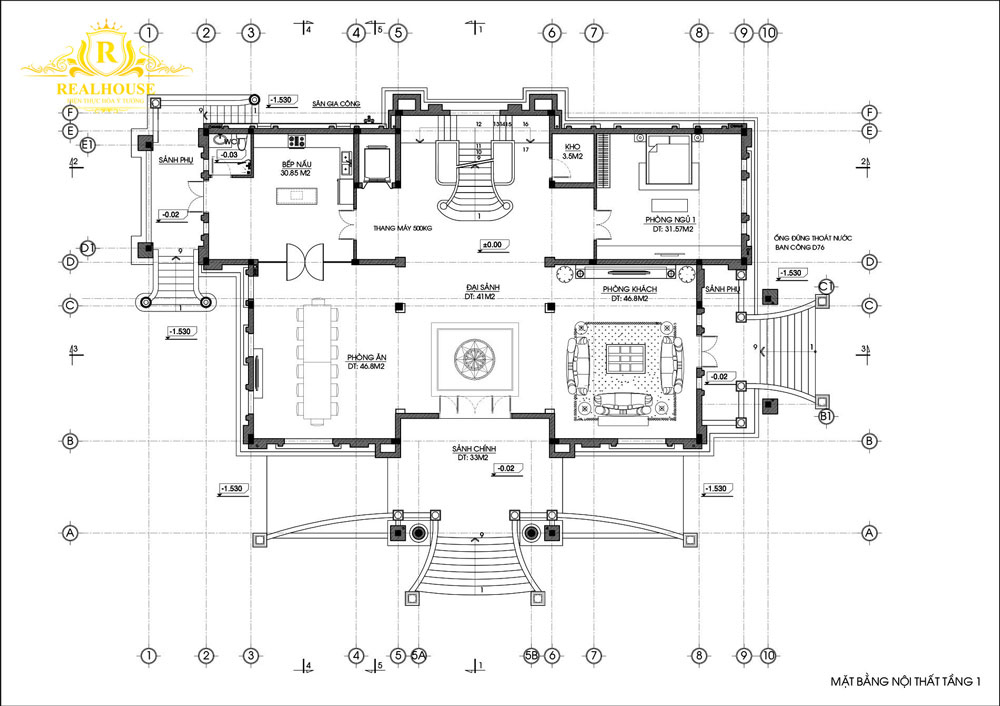
Nội thất tầng 1 – Phòng khách, bếp ăn và không gian sinh hoạt tiện nghi

Tầng 1 gồm 6 phòng chức năng: Phòng khách, phòng ăn, phòng bếp, phòng ngủ, kho và nhà vệ sinh. Real House tập trung tạo nên một không gian sinh hoạt chung vừa bề thế vừa tiện nghi. Phòng khách được thiết kế theo phong cách tân cổ điển với bộ sofa gỗ chạm khắc tinh xảo, trần giật cấp và đèn chùm pha lê nổi bật. Các mảng tường ốp gỗ và đá tự nhiên giúp tăng chiều sâu cho không gian.

Tong-hop-full-noi-that-cua-lau-dai-co-chau-au-4-tang-anh-tuan-thanh-hoa-2-realhouse

Tang-1-phong-khach-bep-an-va-khong-gian-sinh-hoat-tien-nghi-realhouse

Tang-1-phong-khach-bep-an-va-khong-gian-sinh-hoat-tien-nghi-1-realhouse

Tang-1-phong-khach-bep-an-va-khong-gian-sinh-hoat-tien-nghi-2-realhouse

Tang-1-phong-khach-bep-an-va-khong-gian-sinh-hoat-tien-nghi-3-realhouse

Tang-1-phong-khach-bep-an-va-khong-gian-sinh-hoat-tien-nghi-4-realhouse

Tang-1-phong-khach-bep-an-va-khong-gian-sinh-hoat-tien-nghi-5-realhouse

Tang-1-phong-khach-bep-an-va-khong-gian-sinh-hoat-tien-nghi-6-realhouse

Tang-1-phong-khach-bep-an-va-khong-gian-sinh-hoat-tien-nghi-7-realhouse

Tang-1-phong-khach-bep-an-va-khong-gian-sinh-hoat-tien-nghi-8-realhouse

Phòng ăn đặt liền kề phòng khách, sử dụng bàn ăn dài cùng ghế bọc nệm cao cấp. Hệ đèn thả trần tạo điểm nhấn mềm mại. Khu bếp được thiết kế với tủ gỗ cao kịch trần, đảo bếp trung tâm ốp đá, đảm bảo công năng sử dụng hằng ngày. Phòng ngủ tầng 1 phù hợp cho khách hoặc người lớn tuổi, nội thất gọn gàng nhưng vẫn đồng bộ phong cách. Kho và nhà vệ sinh được bố trí kín đáo, đảm bảo sự thuận tiện mà không ảnh hưởng đến thẩm mỹ chung.

Tang-1-phong-khach-bep-an-va-khong-gian-sinh-hoat-tien-nghi-9-realhouse

Tang-1-phong-khach-bep-an-va-khong-gian-sinh-hoat-tien-nghi-10-realhouse

Tang-1-phong-khach-bep-an-va-khong-gian-sinh-hoat-tien-nghi-11-realhouse

Tang-1-phong-khach-bep-an-va-khong-gian-sinh-hoat-tien-nghi-12-realhouse

Tang-1-phong-khach-bep-an-va-khong-gian-sinh-hoat-tien-nghi-13-realhouse

Tang-1-phong-khach-bep-an-va-khong-gian-sinh-hoat-tien-nghi-14-realhouse

Tang-1-phong-khach-bep-an-va-khong-gian-sinh-hoat-tien-nghi-15-realhouse

Tang-1-phong-khach-bep-an-va-khong-gian-sinh-hoat-tien-nghi-16-realhouse

Tang-1-phong-khach-bep-an-va-khong-gian-sinh-hoat-tien-nghi-17-realhouse

Tang-1-phong-khach-bep-an-va-khong-gian-sinh-hoat-tien-nghi-18-realhouse

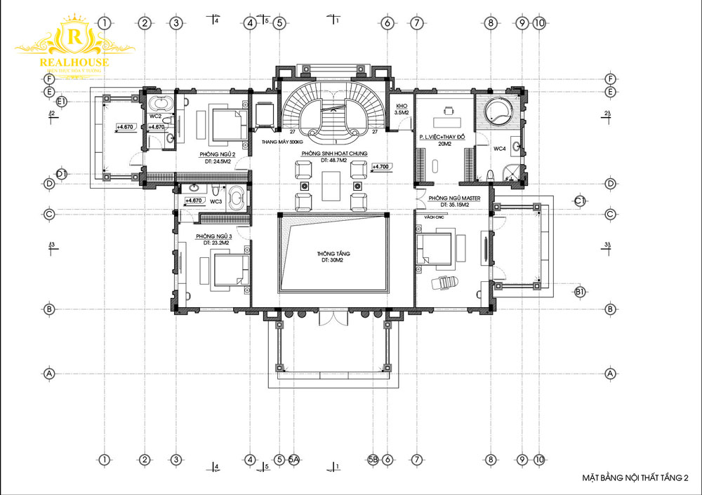
Nội thất tầng 2 – Không gian nghỉ ngơi và sinh hoạt gia đình

Tầng 2 gồm 8 phòng: Phòng sinh hoạt chung, 3 phòng ngủ, 3 nhà vệ sinh và phòng làm việc kết hợp thay đồ. Đây là khu vực riêng tư của gia đình nên Real House chú trọng sự ấm áp và thoải mái trong từng chi tiết nội thất. Phòng sinh hoạt chung được bố trí sofa nhỏ và kệ trang trí, tạo nơi quây quần nhẹ nhàng giữa các thành viên.

Tong-hop-full-noi-that-cua-lau-dai-co-chau-au-4-tang-anh-tuan-thanh-hoa-3-realhouse
Tang-2-khong-gian-nghi-ngoi-va-sinh-hoat-gia-dinh-realhouse

Tang-2-khong-gian-nghi-ngoi-va-sinh-hoat-gia-dinh-1-realhouse

Tang-2-khong-gian-nghi-ngoi-va-sinh-hoat-gia-dinh-2-realhouse

Tang-2-khong-gian-nghi-ngoi-va-sinh-hoat-gia-dinh-3-realhouse

Phòng ngủ master được đầu tư kỹ lưỡng với giường chạm khắc, đầu giường bọc nệm cao cấp và hệ tủ âm tường sang trọng. Hai phòng ngủ còn lại có thiết kế hài hòa, sử dụng tông màu trung tính để tạo cảm giác thư giãn. Phòng làm việc kết hợp thay đồ được phân khu hợp lý, đảm bảo sự riêng tư và tiện nghi. Ba nhà vệ sinh trên tầng sử dụng đá marble sáng màu, thiết bị hiện đại nhưng vẫn giữ đường nét cổ điển, đồng bộ với tổng thể công trình.
Tang-2-khong-gian-nghi-ngoi-va-sinh-hoat-gia-dinh-4-realhouse

Tang-2-khong-gian-nghi-ngoi-va-sinh-hoat-gia-dinh-5-realhouse

Tang-2-khong-gian-nghi-ngoi-va-sinh-hoat-gia-dinh-6-realhouse

Nội thất tầng 3 – Không gian đa năng và phòng thờ trang nghiêm

Tầng 3 được thiết kế gồm 9 phòng: Phòng khách phụ, 2 phòng ngủ, phòng thờ, phòng giải trí, kho và 3 nhà vệ sinh. Phòng khách phụ mang phong cách nhẹ nhàng hơn tầng 1, thích hợp cho những buổi gặp gỡ thân mật. Nội thất sử dụng sofa bọc da, bàn trà gỗ và hệ tủ trang trí đối xứng.

Tang-3-khong-gian-da-nang-va-phong-tho-trang-nghiem-realhouse

Tang-3-khong-gian-da-nang-va-phong-tho-trang-nghiem-3-realhouse

Tang-3-khong-gian-da-nang-va-phong-tho-trang-nghiem-4-realhouse

Phòng thờ là không gian được Real House chăm chút đặc biệt. Toàn bộ nội thất sử dụng gỗ tự nhiên tông trầm, bàn thờ chạm khắc truyền thống tạo cảm giác linh thiêng. Phòng giải trí được thiết kế linh hoạt, có thể bố trí sofa thư giãn và hệ thống âm thanh hiện đại. Hai phòng ngủ trên tầng này tiếp tục giữ phong cách tân cổ điển đồng bộ. Kho và các nhà vệ sinh được sắp xếp khoa học, đảm bảo tiện nghi mà không ảnh hưởng đến bố cục tổng thể.

Nội thất tầng tum – Thư giãn, học tập và chăm sóc sức khỏe

Tầng tum gồm 3 phòng chính: Phòng xông hơi – massage, phòng máy giặt và thư viện. Không gian xông hơi và massage được thiết kế như một spa thu nhỏ, sử dụng tông màu sáng nhẹ để tạo cảm giác thư giãn. Bồn tắm đặt trên bục thấp, kết hợp ánh sáng dịu, giúp gia chủ nghỉ ngơi sau ngày dài làm việc.

Tang-tum-thu-gian-hoc-tap-va-cham-soc-suc-khoe-realhouse

Tang-tum-thu-gian-hoc-tap-va-cham-soc-suc-khoe-1-realhouse

Phòng thư viện mang sắc nâu trầm cổ điển, với hệ tủ sách cao sát trần và bàn đọc sách đặt trung tâm. Đây là nơi học tập và đọc sách mỗi ngày, yên tĩnh và trang nhã. Phòng máy giặt được bố trí gọn gàng, tách biệt với không gian thư giãn để đảm bảo tính tiện dụng. Toàn bộ tầng tum tuy diện tích không lớn nhưng được Real House khai thác hiệu quả, hoàn thiện trọn vẹn bức tranh nội thất sang trọng của lâu đài.

Qua từng tầng không gian, nội thất của lâu đài cổ châu Âu 4 tầng anh Tuấn Thanh Hóa cho thấy sự đầu tư bài bản và phong cách thiết kế chuẩn mực. Real House đã biến mong muốn của gia chủ thành một công trình hoàn thiện cả về thẩm mỹ lẫn công năng. Nếu bạn đang ấp ủ ý tưởng xây dựng tổ ấm sang trọng, hãy liên hệ Real House để được tư vấn thiết kế và thi công trọn gói.

Xem ngay: Mẫu lâu đài cổ Châu Âu 4 tầng anh Tuấn Thanh Hóa

5/5 - (2 votes)

Sản phẩm liên quan