Thiết kế nhà phố chị Linh ở Đà Nẵng là dự án nổi bật của Real House, thể hiện sự tinh tế trong kiến trúc hiện đại và bố trí công năng khoa học. Ngôi nhà 2 tầng trên lô đất lô góc rộng rãi kết hợp hình khối khỏe khoắn, vật liệu cao cấp và không gian mở, tối ưu ánh sáng tự nhiên. Real House đã tạo nên một tổ ấm vừa sang trọng, tiện nghi, vừa gần gũi thiên nhiên, là lựa chọn lý tưởng cho cuộc sống đẳng cấp của gia đình chị Linh.
Thiết kế nhà phố phong cách hiện đại và tinh tế
Kiến trúc ngoại thất của ngôi nhà chị Linh tại Đà Nẵng là sự kết hợp hoàn hảo giữa hình khối, vật liệu cao cấp và phong cách hiện đại tinh tế. Real House đã tận dụng lợi thế lô góc rộng để thiết kế mặt tiền ấn tượng, với các mảng khối vuông vức, giật cấp tinh tế và hệ mái bằng mạnh mẽ, tạo cảm giác bề thế nhưng vẫn thanh thoát. Các đường nét đơn giản nhưng dứt khoát giúp ngôi nhà vừa hiện đại, vừa mang phong cách sang trọng, phù hợp với nhịp sống đô thị năng động.

Vật liệu sử dụng là yếu tố quan trọng làm nổi bật ngoại thất. Real House phối hợp hài hòa giữa sơn trắng chủ đạo, các mảng tường ốp đá tạo chiều sâu và cảm giác ấm áp. Hệ cửa kính giúp tối ưu ánh sáng tự nhiên, mở rộng tầm nhìn ra cảnh quan xung quanh, đồng thời kết nối không gian bên trong với thiên nhiên bên ngoài.
Toàn bộ kiến trúc ngoại thất do Real House thực hiện không chỉ là biểu tượng của phong cách hiện đại mà còn là minh chứng cho cách thức kết hợp hình khối, vật liệu và ánh sáng một cách tinh tế, tạo nên một ngôi nhà phố 2 tầng vừa tiện nghi, vừa nổi bật, vừa bền vững theo thời gian.
Bố trí công năng khoa học trên diện tích đất rộng
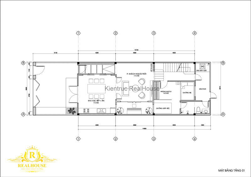
Bố trí công năng của ngôi nhà chị Linh tại Đà Nẵng được Real House thiết kế khoa học, mang lại không gian sống tiện nghi, thông thoáng và hợp lý cho cả gia đình. Tầng 1 được dành cho các không gian sinh hoạt chung, với phòng khách rộng đặt ở góc nhà, tận dụng ánh sáng tự nhiên từ hai mặt tiền và khu vực tiểu cảnh ngoài trời tạo cảm giác thư giãn ngay từ lối vào. Khu bếp và phòng ăn liền kề, diện tích thuận tiện cho việc nấu nướng, sinh hoạt và tổ chức các bữa tiệc gia đình. Ngoài ra, tầng 1 còn có phòng ngủ rộng với hai giường ngủ dành cho mẹ và người giúp việc.

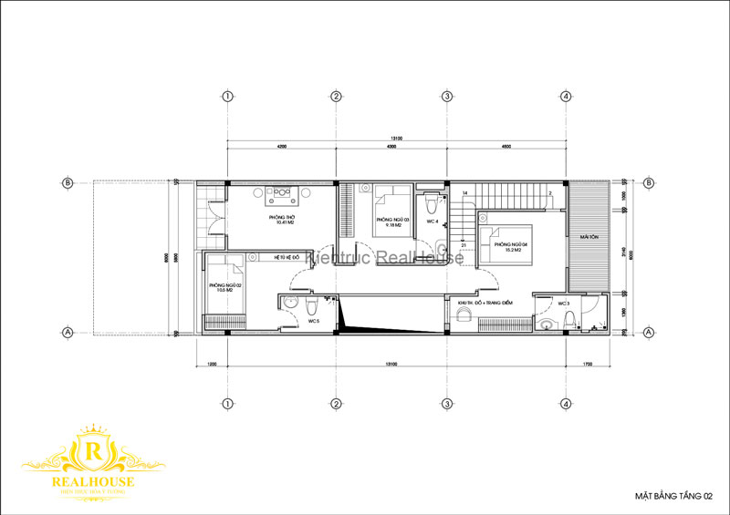
Tầng 2 là không gian nghỉ ngơi riêng tư với 3 phòng ngủ tiêu chuẩn cao. Phòng rộng, có WC khép kín và ban công lớn, đảm bảo sự thoải mái và riêng tư. Hai phòng ngủ còn lại được bố trí hợp lý, có cửa sổ lấy sáng và dùng WC riêng, đảm bảo tiện nghi sinh hoạt. Phòng thờ được bố trí ở vị trí trang nghiêm, yên tĩnh.

Toàn bộ bố trí công năng do Real House thực hiện không chỉ tối ưu hóa không gian mà còn đảm bảo sự lưu thông, tiện nghi, ánh sáng và thông gió, mang đến một tổ ấm hiện đại, thoáng đãng và tiện dụng cho gia đình chị Linh.
Real House – Đồng hành cùng gia chủ xây dựng tổ ấm hoàn hảo
Real House luôn đặt sự hài lòng của gia chủ làm trọng tâm trong mỗi dự án, từ những ý tưởng ban đầu đến khi hoàn thiện ngôi nhà. Với nhà chị Linh tại Đà Nẵng, Real House đã đồng hành xuyên suốt, đảm bảo mọi yêu cầu về kiến trúc, công năng và thẩm mỹ đều được thực hiện chỉn chu. Bằng cách lắng nghe mong muốn của gia đình, đội ngũ kiến trúc sư đã thiết kế một tổ ấm 2 tầng hiện đại, sang trọng, tối ưu không gian và ánh sáng tự nhiên, đồng thời tạo sự kết nối gần gũi với thiên nhiên xung quanh.

Trong quá trình triển khai, Real House chú trọng từng chi tiết, từ hình khối kiến trúc khỏe khoắn, bố trí khoa học, đến việc chọn vật liệu cao cấp, bền vững và phù hợp với phong cách sống của gia chủ. Không gian sinh hoạt chung, phòng ngủ, phòng thờ và sân thượng đều được tính toán hợp lý, đảm bảo tiện nghi, sự thoáng đãng và sự riêng tư cần thiết.
Real House không chỉ thiết kế một ngôi nhà mà còn kiến tạo một không gian sống hoàn hảo, nơi mỗi thành viên trong gia đình cảm thấy thoải mái, an yên và được kết nối với nhau. Sự đồng hành này đảm bảo rằng mọi quyết định, từ kiến trúc đến công năng, đều hướng đến trải nghiệm sống lý tưởng và bền vững.
Real House đã đồng hành cùng gia đình chị Linh để kiến tạo một ngôi nhà phố hiện đại, tiện nghi và đẳng cấp. Sự kết hợp hài hòa giữa vật liệu cao cấp, ánh sáng tự nhiên và không gian mở tạo nên một tổ ấm thoáng đãng, gần gũi thiên nhiên. Nếu đang tìm kiếm đơn vị thiết kế nhà đẹp và xây dựng trọn gói uy tín, Real House chính là sự lựa chọn hoàn hảo.