Năm 2018, Real House đã có cơ hội đồng hành cùng chị Cúc tại Bắc Ninh trong dự án thiết kế và thi công biệt thự 3 tầng theo phong cách tân cổ điển. Đây là một trong những công trình tiêu biểu thể hiện sự hòa quyện tinh tế giữa vẻ đẹp cổ điển sang trọng và nét hiện đại thanh lịch, góp phần nâng tầm không gian sống của gia đình chị Cúc. Với diện tích 80m2, Real House đã mang đến một thiết kế biệt thự đẳng cấp, đầy đủ tiện nghi nhưng vẫn giữ được sự tinh tế và hài hòa với tổng thể kiến trúc.
Hành trình hiện thực hóa giấc mơ biệt thự tân cổ điển
Khi chị Cúc tìm đến Real House, chị đã có mong muốn xây dựng một biệt thự 3 tầng mang phong cách tân cổ điển, thể hiện sự sang trọng và đẳng cấp nhưng không quá cầu kỳ rườm rà. Ngoài các yêu cầu về mặt thẩm mỹ, chị còn rất chú trọng đến công năng sử dụng, nhằm tạo nên một không gian sống tiện nghi, thoải mái cho các thành viên trong gia đình.
Real House đã nhanh chóng khảo sát hiện trạng và lên phương án thiết kế chi tiết, vừa đảm bảo tính thẩm mỹ vừa tối ưu công năng sử dụng. Bản vẽ thiết kế được chau chuốt kỹ lưỡng, thể hiện rõ tinh thần của phong cách tân cổ điển với các đường nét mềm mại, hoa văn trang trí tinh tế và hệ thống cột trụ vững chắc nhưng không làm mất đi sự thanh thoát cho tổng thể.
Mặt tiền biệt thự kết hợp hài hòa giữa cổ điển và hiện đại
Mặt tiền biệt thự của chị Cúc được Real House chăm chút kỹ lưỡng với những đường nét kiến trúc tân cổ điển đặc trưng: cột trụ đăng đối, phào chỉ tinh xảo, kết hợp cùng hệ mái thái dốc nhẹ vừa giữ được vẻ đẹp truyền thống vừa phù hợp với khí hậu Việt Nam. Gam màu trắng kem chủ đạo giúp làm nổi bật các chi tiết hoa văn và tạo cảm giác sang trọng, thanh lịch.
Hệ thống cửa chính, cửa sổ được làm bằng kính cường lực khung nhôm màu đen, tạo điểm nhấn hiện đại, đồng thời tận dụng tối đa ánh sáng tự nhiên cho không gian bên trong. Ban công mỗi tầng được thiết kế với lan can sắt mỹ thuật tinh tế, vừa đảm bảo an toàn vừa mang lại vẻ đẹp mềm mại, uyển chuyển cho ngôi biệt thự.
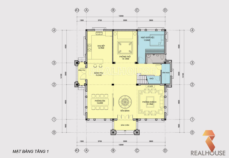
Công năng bố trí khoa học, tiện nghi cho từng thành viên
Với tổng diện tích 80m2 trên mỗi tầng, biệt thự được bố trí hài hòa các không gian chức năng. Tầng 1 là nơi dành cho phòng khách rộng rãi và bếp – phòng ăn, được thiết kế mở, tạo sự kết nối liền mạch và thông thoáng. Phòng khách là nơi gia đình đón tiếp khách quý với nội thất sang trọng, hiện đại, nhưng vẫn giữ được nét tân cổ điển trang nhã.
Tầng 2 và tầng 3 tập trung vào các phòng ngủ, mỗi phòng đều đảm bảo sự riêng tư, thoải mái và trang bị hệ thống cửa sổ lớn để đón sáng tự nhiên. Phòng thờ được đặt ở tầng trên cùng, vị trí trang trọng và yên tĩnh, phù hợp với phong tục truyền thống của người Việt. Các phòng WC được bố trí hợp lý, tiện nghi với đầy đủ thiết bị hiện đại.
Điểm đặc biệt không thể thiếu là khu vực sân vườn nhỏ xinh được Real House thiết kế khéo léo để tạo không gian xanh, mang lại cảm giác thư thái, gần gũi thiên nhiên cho gia đình chị Cúc.
Thi công trọn gói cam kết chất lượng và tiến độ
Ngoài việc thiết kế, Real House còn trực tiếp thi công trọn gói công trình biệt thự này. Đội ngũ thi công với nhiều năm kinh nghiệm luôn tuân thủ quy trình nghiêm ngặt, đảm bảo chất lượng vật liệu và kỹ thuật thi công. Quá trình xây dựng được giám sát chặt chẽ nhằm đảm bảo tiến độ cũng như sự hoàn hảo trong từng chi tiết nhỏ nhất.
Sự hài lòng và niềm tin của chị Cúc là minh chứng rõ nét cho uy tín và năng lực của Real House trong lĩnh vực thiết kế và xây dựng biệt thự cao cấp.
Dự án biệt thự 3 tầng tân cổ điển đẳng cấp tại Bắc Ninh không chỉ là thành quả của một công trình kiến trúc đẹp mà còn là câu chuyện thành công về sự kết nối giữa chủ đầu tư và đơn vị thiết kế, thi công Real House. Với kinh nghiệm dày dặn và sự tận tâm, Real House cam kết mang đến những giải pháp thiết kế nhà đẹp và xây nhà trọn gói tại Đà Nẵng, giúp bạn hiện thực hóa giấc mơ về một tổ ấm hoàn hảo, bền vững và thẩm mỹ. Nếu bạn đang tìm kiếm đơn vị đồng hành uy tín, Real House chính là sự lựa chọn hoàn hảo cho mọi công trình kiến trúc.




