Ngày nay, biệt thự hiện đại luôn là lựa chọn hàng đầu của những gia chủ yêu thích phong cách sống trẻ trung, tối giản nhưng vẫn sang trọng và tiện nghi. Với nhiều năm kinh nghiệm, Real House đã được khách hàng tại Điện Bàn tin tưởng lựa chọn để hiện thực hóa biệt thự hiện đại 2 tầng với thiết kế tinh tế, công năng tối ưu và thi công trọn gói chất lượng cao.
Từ ý tưởng ban đầu đến bản vẽ hoàn hảo
Mỗi công trình biệt thự hiện đại được hình thành đều bắt đầu từ một ý tưởng – nơi đội ngũ kiến trúc sư lắng nghe và thấu hiểu những mong muốn, thói quen sinh hoạt và phong cách sống của gia chủ. Với dự án biệt thự 2 tầng ở Điện Bàn, quá trình đó được thực hiện một cách cẩn trọng và chuyên nghiệp, đảm bảo mọi yếu tố từ thẩm mỹ đến công năng đều được tính toán kỹ lưỡng.

Đội ngũ thiết kế của Real House đã tiến hành khảo sát thực tế khu đất, đánh giá hướng nắng, hướng gió và không gian xung quanh. Từ đó, các kiến trúc sư đề xuất phương án thiết kế nhà phù hợp. Quá trình phát triển bản vẽ được tiến hành qua nhiều giai đoạn – từ phác thảo sơ bộ, dựng phối cảnh 3D đến bản vẽ kỹ thuật chi tiết. Mỗi chi tiết trong thiết kế, từ hình khối kiến trúc, chất liệu sử dụng đến cách bố trí không gian nội thất, đều được tính toán cẩn thận để đảm bảo tính thẩm mỹ và công năng lâu dài.


Kiến trúc biệt thự hiện đại 2 tầng: Tinh tế trong từng chi tiết
Công trình biệt thự 2 tầng nổi bật với phong cách kiến trúc hiện đại, tinh giản nhưng không kém phần ấn tượng. Từng đường nét kiến trúc đều mạch lạc, rõ ràng, kết hợp khéo léo giữa các hình khối vuông vức tạo cảm giác vững chãi nhưng vẫn nhẹ nhàng, thanh thoát.
Một điểm nhấn đặc biệt của ngôi nhà chính là không gian thông tầng được thiết kế tại khu vực trung tâm – không chỉ tạo hiệu ứng thị giác ấn tượng mà còn giúp ngôi nhà đón sáng tự nhiên tốt hơn, thông gió hiệu quả và tạo sự kết nối thoáng đãng giữa các tầng.

Hệ cửa nhôm kính cao cấp nhập khẩu từ đức
Toàn bộ hệ cửa sử dụng nhôm kính dày dặn nhập khẩu từ Đức, giúp cách âm – cách nhiệt tốt, tăng tính an toàn và độ bền cho công trình. Cửa kính lớn bố trí khắp mặt tiền tạo nên không gian mở, kết nối nội thất bên trong với thiên nhiên bên ngoài một cách hài hòa.
Nội thất cao cấp là điểm nhấn khẳng định đẳng cấp
Không chỉ dừng lại ở kiến trúc bên ngoài, nội thất bên trong biệt thự cũng được chăm chút kỹ lưỡng. Một trong những chi tiết đặc sắc và hiếm gặp chính là bàn ăn gỗ nguyên khối dài 3m, được xẻ trực tiếp từ thân cây lớn – giữ nguyên vân gỗ tự nhiên và hình dạng thô mộc, mang lại cảm giác sang trọng mà gần gũi.
Bố trí công năng linh hoạt đáp ứng đa dạng nhu cầu sống
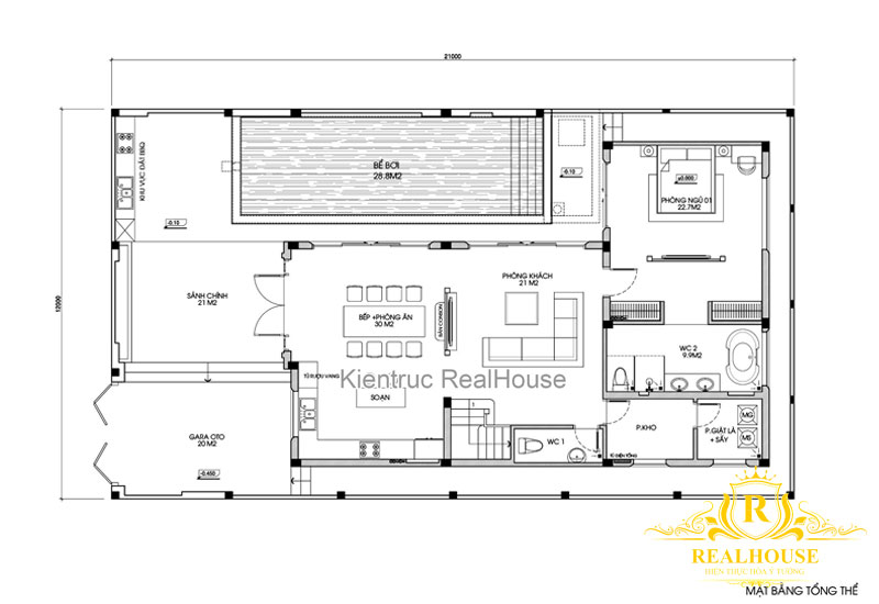
Biệt thự hiện đại 2 tầng ở Điện Bàn được thiết kế với mục tiêu mang lại không gian sống tiện nghi, thoải mái và đáp ứng đầy đủ nhu cầu sinh hoạt của một gia đình nhiều thế hệ. Từng khu vực trong ngôi nhà đều được tính toán kỹ lưỡng, có sự hợp lý trong lưu thông, tối ưu diện tích sử dụng và tạo cảm giác thông thoáng, rộng rãi.
Tầng 1: Được bố trí chủ yếu cho các không gian sinh hoạt chung. Phòng khách được đặt ngay khu vực trung tâm, liên thông với khu bếp và phòng ăn, tạo nên một không gian mở ấm cúng và tiện lợi cho sinh hoạt hằng ngày. Ngoài ra, tầng này còn có một phòng ngủ nhỏ cùng một phòng vệ sinh chung tiện lợi.
Tầng 2: Không gian riêng tư của các thành viên trong gia đình. Tại đây bố trí các phòng ngủ chính và phụ, mỗi phòng đều có cửa sổ lớn để đón sáng và gió trời, mang lại cảm giác thư giãn, dễ chịu. Bên cạnh đó, biệt thự còn được thiết kế thêm khu sân vườn, gara ô tô bể bơi và sân thượng rộng, phục vụ các nhu cầu giải trí, trồng cây hoặc tổ chức những buổi sum họp ngoài trời.
Hoàn thiện bể bơi với vật liệu Terrazzo đẳng cấp & khác biệt
Một trong những điểm nhấn đặc biệt của biệt thự là bể bơi ngoài trời, được Real House chăm chút từ thiết kế đến vật liệu hoàn thiện.
Đáng chú ý, vật liệu terrazzo được lựa chọn cho toàn bộ bề mặt bể bơi – đây là một lựa chọn đặc sắc và hiếm gặp tại các công trình dân dụng thông thường. Terrazzo không chỉ mang lại vẻ đẹp hiện đại mà còn sở hữu hàng loạt ưu điểm vượt trội:
- Bề mặt bóng mịn: Ánh đá lấp lánh, tạo hiệu ứng thị giác cao cấp khi ánh nắng chiếu xuống mặt nước.
- Màu sắc tuỳ biến theo thiết kế tổng thể, giúp hòa quyện hoàn hảo với cảnh quan và kiến trúc.
- Chống thấm, chống mài mòn đảm bảo độ bền vững vượt thời gian trong môi trường nước.
- Thân thiện với môi trường: Sử dụng hạt đá tự nhiên tái chế, terrazzo vừa “xanh” vừa đẹp, thể hiện tinh thần sống bền vững.
Bể bơi vì thế không chỉ là nơi bơi lội mà còn trở thành khu vực thư giãn chuẩn resort ngay tại nhà, góp phần nâng tầm đẳng cấp sống cho gia đình.
Real House – Đồng hành cùng gia chủ từ bản vẽ đến ngôi nhà hoàn thiện
Với dự án biệt thự hiện đại 2 tầng tại Điện Bàn, Real House đã khẳng định vai trò của mình không chỉ là nhà thầu xây dựng, mà còn là người bạn đồng hành đáng tin cậy trên hành trình kiến tạo tổ ấm. Từ giai đoạn lên ý tưởng, đội ngũ kiến trúc sư Real House luôn lắng nghe kỹ lưỡng mong muốn, phong cách sống và nhu cầu thực tế của gia đình. Từ đó có thể mang đến cho khách hàng công trình bền đẹp nhất.
Khi bước vào giai đoạn thi công thực tế, Real House triển khai đội ngũ kỹ sư và giám sát giàu kinh nghiệm, đảm bảo mọi hạng mục đều được thực hiện đúng thiết kế và đạt tiêu chuẩn kỹ thuật cao nhất. Việc lựa chọn vật liệu được kiểm soát chặt chẽ – vừa đảm bảo độ bền, vừa giữ được tính thẩm mỹ cho công trình.
Những hình ảnh thực tế của dự án biệt thự hiện đại 2 tầng mà Real House thực hiện
Biệt thự hiện đại 2 tầng tại Điện Bàn là minh chứng rõ nét cho năng lực thiết kế và thi công trọn gói chuyên nghiệp của Real House. Từng không gian, từng chi tiết đều được đầu tư chỉn chu: từ bể bơi terrazzo độc đáo, bàn ăn gỗ nguyên khối, cửa kính nhập khẩu, cho đến không gian thông tầng sang trọng.
























